Betrokken en persoonlijk
Past uw woning niet meer bij uw woonsituatie? Wilt u groter wonen vanwege gezinsuitbreiding? Of juist kleiner wonen, omdat uw kinderen het huis uit zijn?
Ratelaar 1, Barendrecht
€ ,- k.k.
Omschrijving
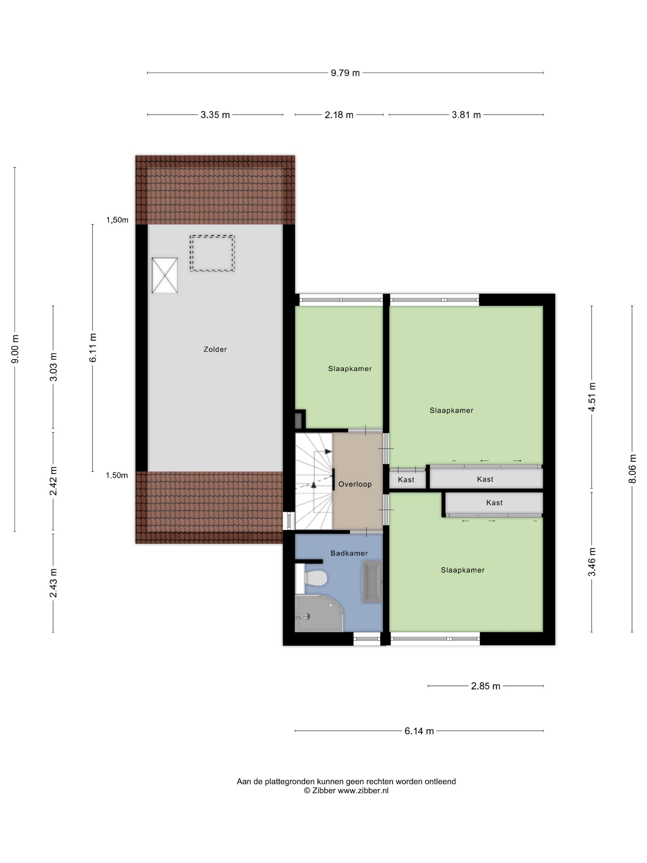
Welkom bij deze 2-onder-1 kapwoning met garage aan de Ratelaar 1 in Barendrecht! Het is hier schitterend wonen met bovendien héél veel ruimte. Denk aan de bijzonder royale woonkamer, liefst 5 (!) slaapkamers, maar vergeet ook de heerlijke (zonnige!) achtertuin niet. En natuurlijk met nagenoeg alle voorzieningen op loopafstand. Enkele pluspunten opgesomd: * Bijzonder ruime 2-onder-1-kapwoning op een perceel van maar liefst 360 m2; * Een royale woonkamer (70 m2) met een grote schuifpui richting de achtertuin en lichtkoepels; * Waanzinnig mooie maatwerk keuken (2025), afgewerkt met hoogwaardige materialen en moderne geïntegreerde inbouwapparatuur; * Totaal telt de woning 5 slaapkamers op de verdiepingen; * De woning is deels gemoderniseerd in 2023-2025; * Zonnige tuinligging op het zuiden, met royale zij-tuin. Daarnaast is ook de ligging helemaal top! De winkels op de Middenbaan zijn op loopafstand te bereiken, er zijn diverse sportvoorzieningen in de directe omgeving en ook het park Buitenoord is ideaal gelegen voor een fijne (avond)wandeling. Voor gezinnen is dit bovendien een prettige plek: er zijn speelvoorzieningen in de buurt en de wijk is ruim opgezet met volop groen en voldoende parkeergelegenheid. Mede dankzij het NS-station, de bushalte (lijn 84) en diverse uitvalswegen (A15, A16 en A29) verplaats je je moeiteloos door- en buiten Barendrecht! Indeling Begane grond Bij binnenkomst valt direct de hotelchique afwerking op. De begane grond is voorzien van een pvc-vloer met vloerverwarming als hoofdverwarming. Wanden en plafonds zijn strak gestuukt. In de hal bevindt zich een fraaie garderobekastenwand, de trap naar de eerste verdieping en een ruim, volledig betegeld toilet met marmeren tegels, voorzien van een elektrisch toilet en een wastafelmeubel. Via een stijlvolle stalen deur betreedt u de lichte, royale woonkamer, voorzien van een open haard, schuifpui en lichtkoepels. Aan de achterzijde van de woning bevindt zich een luxe maatwerk keuken (2025) met een natuurstenen blad, uitgerust met een inductiekookplaat met geïntegreerd afzuigsysteem, koelkast, vriezer, vaatwasser, Quooker, oven met stoomfunctie en een oven met airfryerfunctie. Tevens vindt u in de keuken een binnendoor naar de ruime garage. ? Garage / bijkeuken Afmetingen: ca. 8,90 m x 3,35 m. De ruime garage is opgedeeld in twee delen. Het eerste gedeelte is voorzien van een garagedeur - ideaal voor fietsen, opslag en/of hobbyruimte. Het tweede gedeelte is voorzien van een opstelplaats voor de wasapparatuur, geeft toegang tot het woongedeelte en tot een ruime opbergzolder via een vlizotrap. Tevens is er een loopdeur naar de achtertuin. Eerste verdieping De overloop biedt toegang tot drie ruime slaapkamers, de badkamer en de trap naar de tweede verdieping. De volledig betegelde badkamer is voorzien van een douche, dubbele wastafel, toilet en designradiator. • Slaapkamer I: ca. 4,51 x 3,81 m, voorzien van een ingebouwde kast; • Slaapkamer II: ca. 3,46 x 3,81 m , tevens voorzien van een ingebouwde kast; • Slaapkamer III: ca. 3,03 x 2,18 m Tweede verdieping Bereikbaar via een vaste trap. Voorzolder met opstelplaats voor de cv-ketel (Remeha), dakraam en toegang tot twee zolderslaapkamers. Slaapkamer aan de voorzijde van de woning: ca. 3,78 x 3,28 m, voorzien van een dakkapel met elektrisch bedienbaar rolluik, gladde wandafwerking en een laminaatvloer. Slaapkamer aan de achterzijde van de woning: ca. 3,78 x 3,22 m, eveneens voorzien van een dakkapel met elektrisch bedienbaar rolluik, gladde wandafwerking en een laminaatvloer. Buitenruimte • De woning heeft een voortuin, zijtuin en een achtertuin welke is gelegen is op het zuiden. De tuin is verzorgd aangelegd. Destijds is er een stuk zijtuin bijgekocht, hierdoor is de achtertuin wat breder en is er een ruime zij-entree. Bijzonderheden • Riante garage • Parkeren op eigen terrein • Vloerverwarming op de begane grond • Cv-ketel: Remeha , bouwjaar 2017 • Energielabel D • Woonoppervlakte ca. 173 m² De woning is deels vernieuwd in 2023-2025 en combineert instapklare ruimtes met de vrijheid om enkele onderdelen, zoals de slaapkamers, volledig naar eigen wensen te moderniseren. Zo creëer je eenvoudig je eigen droominterieur. Interesse? Heeft u interesse in deze woning? Neem gerust contact op met ons kantoor voor het plannen van een bezichtiging. Oplevering: in overleg, kan snel
Plattegrond
Locatie
Gratis waardebepaling!
Wij snappen als geen ander dat u eerst de waarde van uw huidige woning wilt weten, voordat u over gaat tot het zoeken naar een nieuwe woning. Is de woning waar u nu naar kijkt uw droomwoning? Dan komen we gratis bij u langs om te kijken wat uw huidige woning op dit moment waard is.
Bereken uw maximale hypotheek
Is dit uw droomwoning? Maak dan een afspraak met ons om samen uw financiele mogelijkheden onder de loep te nemen!
Ons nieuwste aanbod
Onze ervaren, deskundige en gediplomeerde makelaars staan altijd voor u klaar vanaf het eerste moment tot en met het notarieel transport bij de notaris. Bij Intrahuis Makelaars staat klanttevredenheid hoog in het vaandel.
Gratis waardebepaling
Benieuwd of het ook voor u een mooi moment is om uw woning te gaan verkopen? Een goed begin is dan een gratis waardebepaling. Hiermee krijgt u een indruk van waar de woning staat in de markt. Onze makelaar komt vrijblijvend bij u langs en geeft op basis van de staat van de woning, de huidige woningmarkt en de woningtransacties in de afgelopen periode een schatting van de actuele marktwaarde van uw woning.
Bij een gratis waardebepaling van Intrahuis Makelaars gaan we ongeveer hetzelfde te werk als wanneer we een huis in de verkoop nemen. Tijdens de afspraak kunt u ook meteen al u vragen stellen over een eventuele verkoop van de woning. Zo leert u ons gelijk al een beetje kennen.