Betrokken en persoonlijk
Past uw woning niet meer bij uw woonsituatie? Wilt u groter wonen vanwege gezinsuitbreiding? Of juist kleiner wonen, omdat uw kinderen het huis uit zijn?
Ballade 111, Zwijndrecht
€ 475.000,- k.k.
Omschrijving
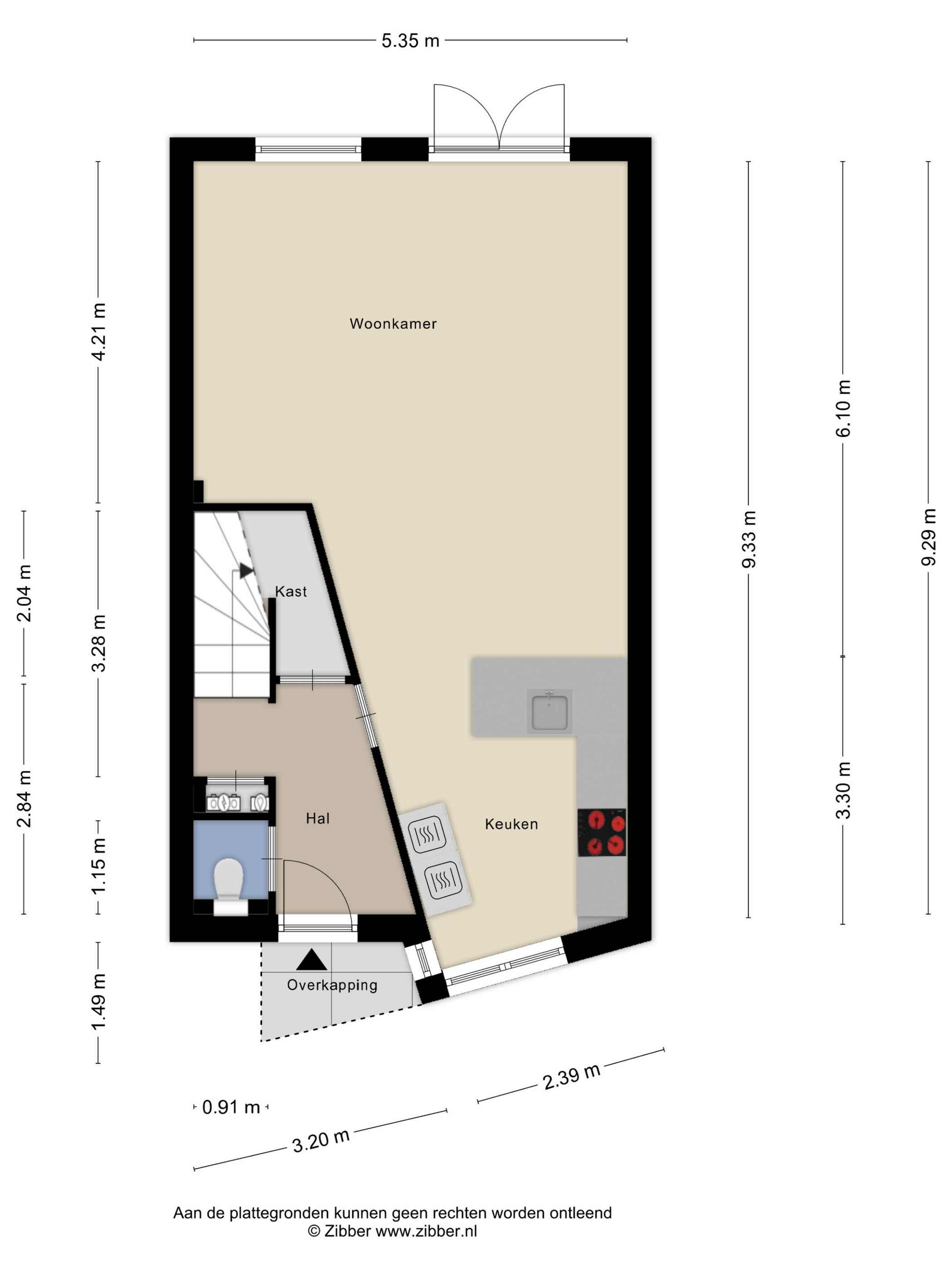
Nette eengezinswoning in de populaire wijk Heer Oudelands Ambacht! Deze goed onderhouden eengezinswoning beschikt over circa 116 m² woonoppervlakte, verdeeld over drie verdiepingen, met meerdere slaapkamers, voldoende bergruimte en een zonnige achtertuin op het zuidwesten. De ligging in deze kindvriendelijke wijk is ideaal: op korte afstand van winkels, diverse basisscholen, openbaar vervoer en uitvalswegen. Ook het Develbos en het Munnikenpark bevinden zich in de directe omgeving, perfect voor een ontspannen wandeling. Nieuwsgierig geworden? Maak dan snel een afspraak voor een bezichtiging! Begane grond Entree/hal met meterkast, trapopgang naar de eerste verdieping, moderne toiletruimte en een ruime trapkast, ideaal voor extra bergruimte. De tuingerichte woonkamer is voorzien van openslaande deuren naar de achtertuin en een airconditioning (koelen/verwarmen). Aan de voorzijde bevindt zich de open keuken in hoekopstelling, uitgerust met diverse inbouwapparatuur, waaronder een koel-/vriescombinatie, vaatwasser, inductiekookplaat met teppanyaki-plaat, afzuigkap, heteluchtoven en een stoomoven. De gehele begane grond is afgewerkt met een fraaie PVC-vloer en voorzien van vloerverwarming als hoofdverwarming. Eerste verdieping Overloop met toegang tot de slaapkamers, badkamer en trapopgang naar de tweede verdieping. Slaapkamer 1 en 2 zijn gelegen aan de achterzijde van de woning en voorzien van een dakkapel en een laminaatvloer. Slaapkamer 3, momenteel ingericht als kastenkamer, biedt directe toegang tot de moderne badkamer. De badkamer is uitgerust met een ruime inloopdouche met regendouche, ligbad met douchegedeelte, dubbele wastafel met spiegelkast en een tweede wandcloset. De eerste verdieping is gedeeltelijk voorzien van vloerverwarming als hoofdverwarming. Tweede verdieping Voorzolder met aparte bergruimte, waar de cv-ketel, de omvormer van de zonnepanelen en de aansluitingen voor de wasmachine en droger zich bevinden. Slaapkamer 4 is een ruime zolderkamer met twee dakramen en een vlizotrap naar de bergzolder. Deze ruimte kan indien gewenst worden opgedeeld in twee slaapkamers. Buiten De achtertuin is gelegen op het zonnige zuidwesten. Op warme dagen biedt het elektrisch bedienbare, brede zonnescherm aangename schaduw. Achter in de tuin bevindt zich een stenen berging voorzien van elektra. De tuin is tevens bereikbaar via een achterom. Kenmerken • Bouwjaar: 1997 • Woonoppervlakte: 116 m² • Perceeloppervlakte: 133 m² • Inhoud: 410 m³ Bijzonderheden • CV-combiketel (Nefit, 2010) • Houten kozijnen met dubbele beglazing (deels lek) • Voorzien van vloer-, dak- en gevelisolatie • 11 zonnepanelen (2021) • Badkamer gedeeltelijk vernieuwd in 2021 • Nieuwe PVC-vloer op de begane grond (2021) • Energielabel B Oplevering: in overleg
Plattegrond
Locatie
Gratis waardebepaling!
Wij snappen als geen ander dat u eerst de waarde van uw huidige woning wilt weten, voordat u over gaat tot het zoeken naar een nieuwe woning. Is de woning waar u nu naar kijkt uw droomwoning? Dan komen we gratis bij u langs om te kijken wat uw huidige woning op dit moment waard is.
Bereken uw maximale hypotheek
Is dit uw droomwoning? Maak dan een afspraak met ons om samen uw financiele mogelijkheden onder de loep te nemen!
Ons nieuwste aanbod
Onze ervaren, deskundige en gediplomeerde makelaars staan altijd voor u klaar vanaf het eerste moment tot en met het notarieel transport bij de notaris. Bij Intrahuis Makelaars staat klanttevredenheid hoog in het vaandel.
Gratis waardebepaling
Benieuwd of het ook voor u een mooi moment is om uw woning te gaan verkopen? Een goed begin is dan een gratis waardebepaling. Hiermee krijgt u een indruk van waar de woning staat in de markt. Onze makelaar komt vrijblijvend bij u langs en geeft op basis van de staat van de woning, de huidige woningmarkt en de woningtransacties in de afgelopen periode een schatting van de actuele marktwaarde van uw woning.
Bij een gratis waardebepaling van Intrahuis Makelaars gaan we ongeveer hetzelfde te werk als wanneer we een huis in de verkoop nemen. Tijdens de afspraak kunt u ook meteen al u vragen stellen over een eventuele verkoop van de woning. Zo leert u ons gelijk al een beetje kennen.