Betrokken en persoonlijk
Past uw woning niet meer bij uw woonsituatie? Wilt u groter wonen vanwege gezinsuitbreiding? Of juist kleiner wonen, omdat uw kinderen het huis uit zijn?
Rijksstraatweg 148, Ridderkerk
€ 747.500,- k.k.
Omschrijving
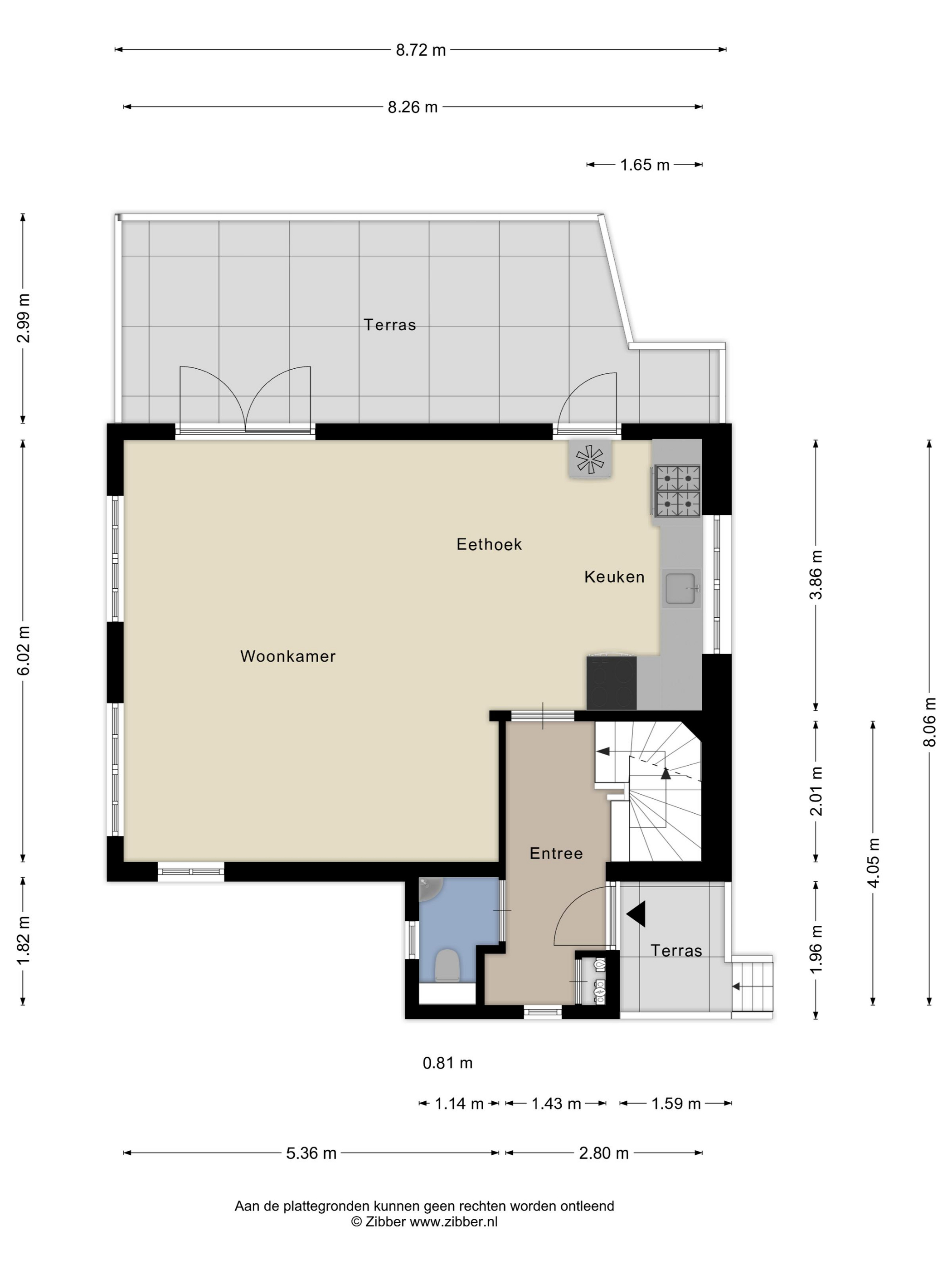
In deze in 2006 gebouwde, ruime vrijstaande woning met rieten kap voelt u zich direct thuis. De woning wordt gekenmerkt door een prachtige lichtinval dankzij de royale raampartijen. Sinds de bouw is het huis met grote zorg en aandacht bewoond en onderhouden, wat zichtbaar is in de hoogwaardige afwerking en de uitstekende staat van onderhoud. De ligging is bijzonder prettig: gelegen in de geliefde wijk Rijsoord, rustig en groen, maar tegelijkertijd centraal ten opzichte van voorzieningen en uitvalswegen. Hier geniet u van een ideale combinatie van landelijke sfeer en stedelijk comfort. Het centrum van Ridderkerk, met een ruim aanbod aan winkels, horeca en overige voorzieningen, bevindt zich op korte afstand. Voor ontspanning in de natuur liggen recreatiegebieden zoals De Wevershoek en het Waalbos op slechts enkele minuten afstand. Daarnaast zijn de uitvalswegen A15 en A16 snel bereikbaar, waardoor steden als Rotterdam en Dordrecht eenvoudig te bereiken zijn. Aan de presentatie zijn enkele impressies toegevoegd waarbij als suggestie een woonkeuken is gerealiseerd in het souterrain, door deze afbeeldingen krijgt u een beeld hoe goed deze ruimte daar geschikt voor te maken is. Van de woonkamer zonder eventuele keuken zijn ook impressies gemaakt zodat u een volledig beeld heeft. De styliste is ook altijd bereid om uw persoonlijke woonwensen in beeld te brengen. Indeling Begane grond Bij binnenkomst betreedt u de hal met meterkast, een keurig verzorgde toiletruimte en de trapopgang naar zowel de verdieping als het souterrain. De ruime woonkamer beschikt over grote raampartijen die zorgen voor een aangename lichtinval. De ruimte is afgewerkt met houten vloerdelen en strak gestuukte wanden en plafonds, voorzien van inbouwspots. Deze woonlaag is uitgerust met vloerverwarming als hoofdverwarming. Via openslaande deuren is er toegang tot het zonnige terras. De open keuken is onder andere uitgerust met een gaskookplaat, koelkast, RVS-afzuigkap, vaatwasser, magnetron en oven en vormt een prettige verbinding met de woonkamer. Vanuit de keuken is eveneens toegang tot het terras. Souterrain Deze tuinkamer is voor diverse doeleinden te gebruiken. Denk hierbij aan een praktijkruimte van ca. 5,37 x 5,82 m (met eigen entree), een gym, atelier of extra slaapkamer met eventueel een eigen doucheruimte. In het voorportaal bevindt zich extra bergruimte en de opstelplaats van de cv-combiketel. Tevens is hier een extra aansluiting gerealiseerd voor wasapparatuur. Eerste verdieping Overloop met toegang tot alle vertrekken: • Slaapkamer I: ca. 2,62 x 2,10 m • Badkamer: ca. 3,91 x 1,91 m, modern en verzorgd uitgevoerd, voorzien van douche, ligbad, wastafelmeubel, designradiator en toilet • Slaapkamer II: ca. 3,24 x 2,56 m (thans in gebruik als kantoorruimte) • Slaapkamer III: ca. 6,02 x 2,98 m, gelegen aan de achterzijde van de woning Bergvliering Koffervliering, bereikbaar middels een vlizotrap. Bijzonderheden • Hardhouten kozijnen met dubbele beglazing • Energielabel A • Woonoppervlakte ca. 149 m² • Perceel eigen grond ca. 325 m² • Rieten kap uitgevoerd als schroefdak • 13 zonnepanelen geplaatst in 2023 • Cv-combiketel (Intergas HRE 28/24 is van 2020) • Dubbelwandig rookkanaal aanwezig, eventueel weer in gebruik te nemen voor een allesbrander of open haard Oplevering: in overleg
Plattegrond
Plattegrond 1 - Rijksstraatweg 148
Plattegrond 2 - Rijksstraatweg 148
Plattegrond 3 - Rijksstraatweg 148
Plattegrond 4 - Rijksstraatweg 148
Plattegrond 5 - Rijksstraatweg 148
Plattegrond 6 - Rijksstraatweg 148
Plattegrond 7 - Rijksstraatweg 148
Plattegrond 8 - Rijksstraatweg 148
Plattegrond 9 - Rijksstraatweg 148
Plattegrond 10 - Rijksstraatweg 148
Locatie
Gratis waardebepaling!
Wij snappen als geen ander dat u eerst de waarde van uw huidige woning wilt weten, voordat u over gaat tot het zoeken naar een nieuwe woning. Is de woning waar u nu naar kijkt uw droomwoning? Dan komen we gratis bij u langs om te kijken wat uw huidige woning op dit moment waard is.
Bereken uw maximale hypotheek
Is dit uw droomwoning? Maak dan een afspraak met ons om samen uw financiele mogelijkheden onder de loep te nemen!
Ons nieuwste aanbod
Onze ervaren, deskundige en gediplomeerde makelaars staan altijd voor u klaar vanaf het eerste moment tot en met het notarieel transport bij de notaris. Bij Intrahuis Makelaars staat klanttevredenheid hoog in het vaandel.
Gratis waardebepaling
Benieuwd of het ook voor u een mooi moment is om uw woning te gaan verkopen? Een goed begin is dan een gratis waardebepaling. Hiermee krijgt u een indruk van waar de woning staat in de markt. Onze makelaar komt vrijblijvend bij u langs en geeft op basis van de staat van de woning, de huidige woningmarkt en de woningtransacties in de afgelopen periode een schatting van de actuele marktwaarde van uw woning.
Bij een gratis waardebepaling van Intrahuis Makelaars gaan we ongeveer hetzelfde te werk als wanneer we een huis in de verkoop nemen. Tijdens de afspraak kunt u ook meteen al u vragen stellen over een eventuele verkoop van de woning. Zo leert u ons gelijk al een beetje kennen.