Betrokken en persoonlijk
Past uw woning niet meer bij uw woonsituatie? Wilt u groter wonen vanwege gezinsuitbreiding? Of juist kleiner wonen, omdat uw kinderen het huis uit zijn?
Kievitsweg 56, Ridderkerk
€ 399.500,- k.k.
Omschrijving
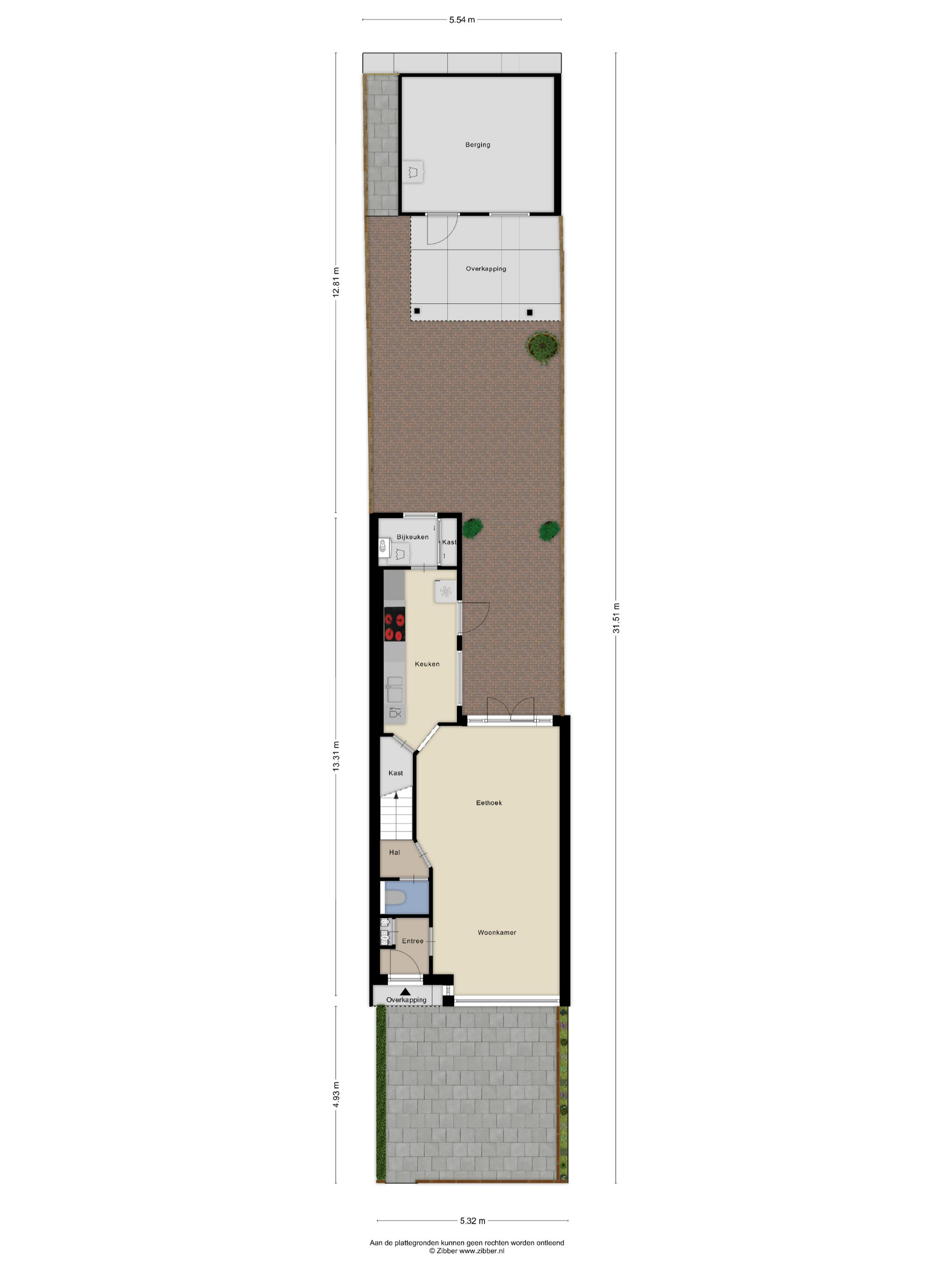
Aan de altijd fraaie Kievitsweg in Ridderkerk-Slikkerveer ligt deze tussenwoning met drie slaapkamers en een diepe achtertuin van 18 meter! De woning is gebouwd in 1940, staat op een perceel van 156 m² en beschikt over een woonoppervlakte van 99 m². De woning is gelegen in de rustige en kindvriendelijke wijk Slikkerveer, met het centrum van Ridderkerk op een steenworp afstand. De bushalte bevindt zich op loopafstand en de Waterbus is gemakkelijk per fiets bereikbaar. Ook met de auto is de woning uitstekend te bereiken via de uitvalswegen A15 en A16. Zowel winkelcentrum Ridderhof als het Dillenburgplein liggen op korte fietsafstand, waardoor alle dagelijkse voorzieningen binnen handbereik zijn. ________________________________________ Indeling Begane grond Entree/hal met meterkast en toegang tot de woonkamer. Knusse woonkamer voorzien van eikenhouten vloerdelen en openslaande deuren naar de achtertuin. De keuken bevindt zich in de aanbouw en is uitgerust met een inductiekookplaat, afzuigkap, koelkast en vaatwasser. Ook is er toegang tot de diepe kelderkast (altijd droog), ideaal voor extra voorraad. Via de keuken bereikt u de bijkeuken en de achtertuin. De bijkeuken beschikt over een schuifkast en de opstelplaats van de cv-ketel en de wasmachine. Vanuit de woonkamer bereikt u de tussenhal met deels betegelde toiletruimte met wandcloset en de trapopgang naar de eerste verdieping. Eerste verdieping Overloop met toegang tot het dakterras, de slaapkamers, de badkamer en de vaste trap naar de tweede verdieping. • Slaapkamer I: Gelegen aan de voorzijde van de woning, voorzien van een vaste schuifkast en een sunscreen. Afmetingen circa 3.73m x 3.01m. • Slaapkamer II: Gelegen aan de achterzijde van de woning, voorzien van een airco. Afmetingen circa 3.09m x 3.01m. De badkamer is uitgerust met een wastafelmeubel, douche, tweede toilet, mechanische afzuiging en een radiator. Tweede verdieping Door de nokverhoging aan de achterzijde en de dakkapel aan de voorzijde is een ruime tweede verdieping ontstaan met een voorzolder en een zolderkamer. De voorzolder biedt ruimte aan de mechanische ventilatiebox, de omvormer van de zonnepanelen en extra bergruimte achter de knieschotten. • Slaapkamer III: Ruime zolderkamer met veel lichtinval en een sunscreen aan de voorzijde. Achter de schotten bevindt zich extra bergruimte. Tuin De achtertuin is gelegen op het noordoosten, verzorgd aangelegd en grotendeels betegeld. Er is een vrijstaande houten berging aanwezig, voorzien van elektra, isolatie en een bergvliering. Tevens is er een achterom. ________________________________________ Bijzonderheden • Riante achtertuin van circa 18 meter diep • Drie slaapkamers • Nokverhoging aan de achterzijde en dakkapel aan de voorzijde (2e verdieping) • Raam in de woonkamer aan de voorzijde vernieuwd in 2025 • Meterkast vernieuwd in 2024 • 7 zonnepanelen geplaatst in 2024 • Airco’s geplaatst in 2022 • Bitumen dak van de keuken vernieuwd in 2022 • CV-combiketel (Vaillant), bouwjaar 2013 • Mechanische ventilatiebox vernieuwd in 2021 • Buitenschilderwerk uitgevoerd in 2021 • Energielabel C Eigenschappen • Perceel: 156 m² eigen grond • Woonoppervlakte: 99 m² • Inhoud: 351 m³ • Bouwjaar: 1940 Oplevering: In overleg
Plattegrond
Locatie
Gratis waardebepaling!
Wij snappen als geen ander dat u eerst de waarde van uw huidige woning wilt weten, voordat u over gaat tot het zoeken naar een nieuwe woning. Is de woning waar u nu naar kijkt uw droomwoning? Dan komen we gratis bij u langs om te kijken wat uw huidige woning op dit moment waard is.
Bereken uw maximale hypotheek
Is dit uw droomwoning? Maak dan een afspraak met ons om samen uw financiele mogelijkheden onder de loep te nemen!
Ons nieuwste aanbod
Onze ervaren, deskundige en gediplomeerde makelaars staan altijd voor u klaar vanaf het eerste moment tot en met het notarieel transport bij de notaris. Bij Intrahuis Makelaars staat klanttevredenheid hoog in het vaandel.
Gratis waardebepaling
Benieuwd of het ook voor u een mooi moment is om uw woning te gaan verkopen? Een goed begin is dan een gratis waardebepaling. Hiermee krijgt u een indruk van waar de woning staat in de markt. Onze makelaar komt vrijblijvend bij u langs en geeft op basis van de staat van de woning, de huidige woningmarkt en de woningtransacties in de afgelopen periode een schatting van de actuele marktwaarde van uw woning.
Bij een gratis waardebepaling van Intrahuis Makelaars gaan we ongeveer hetzelfde te werk als wanneer we een huis in de verkoop nemen. Tijdens de afspraak kunt u ook meteen al u vragen stellen over een eventuele verkoop van de woning. Zo leert u ons gelijk al een beetje kennen.